你有没有想过,家里的衣柜不仅仅是用来存放衣服的地方,它还是家居风格的一大亮点呢?想要打造一个既实用又美观的衣柜,第一步就是要看懂衣柜开料分解图纸。别急,今天我就来给你详细解析怎么读懂这些看似复杂的图纸。
一、认识图纸的基本元素

首先,你得知道衣柜开料分解图纸上的基本元素有哪些。一般来说,这些图纸会包含以下内容:
1. 尺寸标注:这是图纸中最关键的部分,它会告诉你每个部件的具体尺寸,包括长、宽、高。
2. 材料说明:这里会标注出每个部件所使用的材料,比如板材、五金件等。
3. 结构图:展示衣柜的整体结构,包括各个部件的连接方式。
4. 细节图:针对一些复杂的部件,会有详细的细节图,以便于制作和安装。
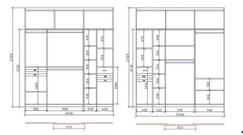
二、读懂尺寸标注

尺寸标注是图纸的核心,读懂它才能确保你的衣柜尺寸准确无误。以下是一些解读尺寸标注的小技巧:
1. 单位:注意图纸上的尺寸单位,常见的有毫米(mm)和厘米(cm)。
2. 标注位置:尺寸标注通常位于部件的边缘或者关键位置。
3. 尺寸类型:图纸上的尺寸分为实际尺寸和理论尺寸。实际尺寸是制作时需要参考的尺寸,而理论尺寸则是设计时的尺寸。
三、分析结构图

结构图是衣柜开料分解图纸的灵魂,它决定了衣柜的稳定性和美观度。以下是如何分析结构图的方法:
1. 部件连接:观察图纸上的部件连接方式,比如板件之间的拼接、五金件的安装位置等。
2. 支撑结构:了解衣柜的支撑结构,比如侧板、顶板、底板等,确保它们能够承受衣柜的重量。
3. 美观性:分析结构图中的线条和形状,确保衣柜的整体美观。
四、细节图的重要性
细节图虽然只占图纸的一小部分,但它们对于衣柜的制作和安装至关重要。以下是如何解读细节图的方法:
1. 五金件安装:细节图会标注出五金件的安装位置和方式,确保安装准确无误。
2. 特殊工艺:有些衣柜可能会采用特殊的工艺,如雕刻、贴膜等,细节图会展示这些工艺的具体操作方法。
3. 注意事项:细节图上可能会标注一些注意事项,比如安装顺序、材料要求等,一定要仔细阅读。
五、实际操作中的注意事项
在解读衣柜开料分解图纸的过程中,还有一些实际操作中的注意事项需要你注意:
1. 工具准备:根据图纸上的材料说明,提前准备好相应的工具,如电锯、钻头、螺丝刀等。
2. 材料采购:根据图纸上的尺寸和材料说明,提前采购好所需的材料,避免制作过程中出现材料短缺的情况。
3. 安全第一:在制作和安装衣柜的过程中,一定要注意安全,避免发生意外。
通过以上这些详细的解析,相信你已经对如何读懂衣柜开料分解图纸有了更深入的了解。现在,你就可以根据自己的需求,选择合适的图纸,开始打造你的梦想衣柜了。记得,耐心和细心是成功的关键哦!
转载请注明出处:admin,如有疑问,请联系()。
本文地址:http://wwww.fshappygarden.cn/post/1058.html
